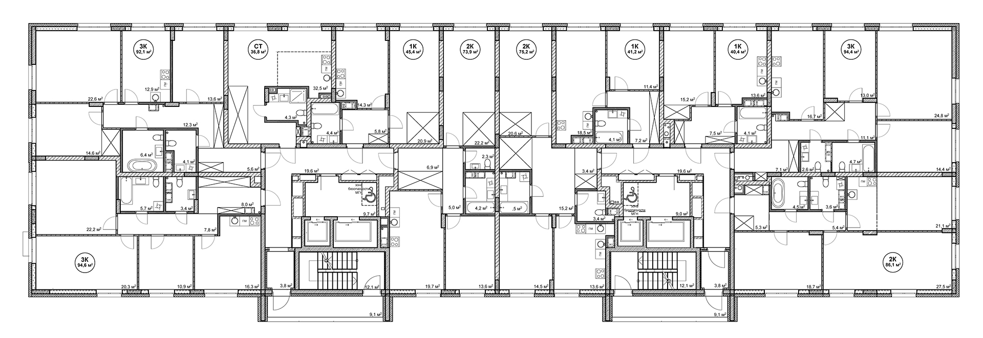
2-комнатная квартира № 6
КОМНАТ
2
ЭТАЖ
3
ПЛОЩАДЬ
75.2 м²
| Проект | ЖК Подкова. Дом на Цветочной |
| Дом | Дом № 1, Секция 1 |
| Сдача | |
| Отделка | Предчистовая |
| Вид из окна | Во двор и на улицу |
пн–пт 08:00–20:00
сб. 10:00–19:00
| Проект | ЖК Подкова. Дом на Цветочной |
| Дом | Дом № 1, Секция 1 |
| Сдача | |
| Отделка | Предчистовая |
| Вид из окна | Во двор и на улицу |