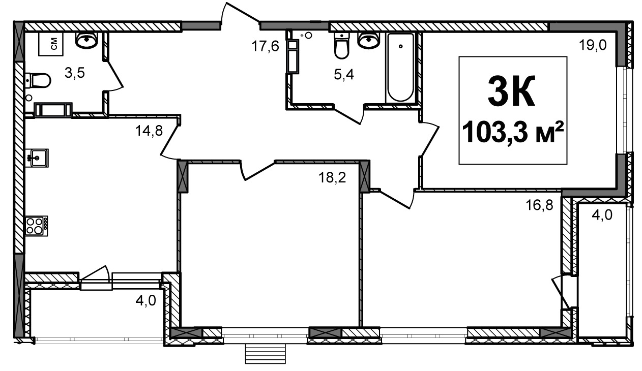
3-комнатная квартира № 48

КОМНАТ

3

ЭТАЖ

7

ПЛОЩАДЬ

103.3 м²

Квартира забронирована
Проект ЖК Подкова на Родионова
Дом Дом № 4, Секция 1
Сдача
Отделка Предчистовая
Вид из окна Во двор и на улицу
8 (831)

телефон отдела продаж

Список квартир