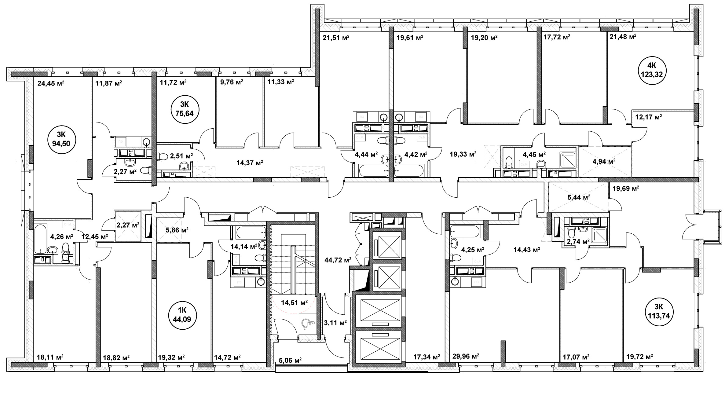
4-комнатная квартира № 156

КОМНАТ

4

ЭТАЖ

21

ПЛОЩАДЬ

123.32 м²

Узнать цену
Проект ЖК Подкова Новая
Дом Дом. № 1.1, Секция 1
Сдача
Отделка Предчистовая
Вид из окна На улицу
8 (831)

телефон отдела продаж

Список квартир